燃气熔盐炉在光热发电项目上的应用
燃气熔盐炉在光热发电项目上的应用
光热发电的基本原理:通常一个光热电站分为集热镜场,储热系统,常规岛三个部分。集热镜场的原理与太阳灶类似,无数面定日镜将收集到的阳光反射到集热塔上,集热塔上有一个吸热器,储热系统低温罐中的熔盐(通常是290℃)被泵到吸热器中吸收能量,温度升高(通常是565℃),流入到高温罐之中,并储存起来。
在需要的时候,高温罐熔盐可以泵出,与水换热,产生蒸汽,推动汽轮机发电,这一部分原理与常规火电类似,被称为常规岛,这就是塔式熔盐光热电站的基本流程
为实现太阳能发电站的持续运行,必须把白天收集到的太阳能储存起来,到晚上再用。白天,光热电站主要是利用集热器收集太阳能光热从而加热传热介质熔盐,晚上,传热介质熔盐再通过换热设备加热水产生高温高压的过热蒸汽去推动汽轮机发电。熔盐热能储能装置是一种将太阳能收集后储存起来的综合系统。由换热设备、高温储罐、低温储罐、输送泵、阀门、管线、自动控制装置组成。
对于带有熔盐储能的光热电站,其关键技术是如何把大量固态熔盐快速安全地熔化后注入系统和如何让大量熔化后的熔盐维持一定的温度不凝固。其核心系统就是化盐系统,核心装置就是燃气熔盐炉
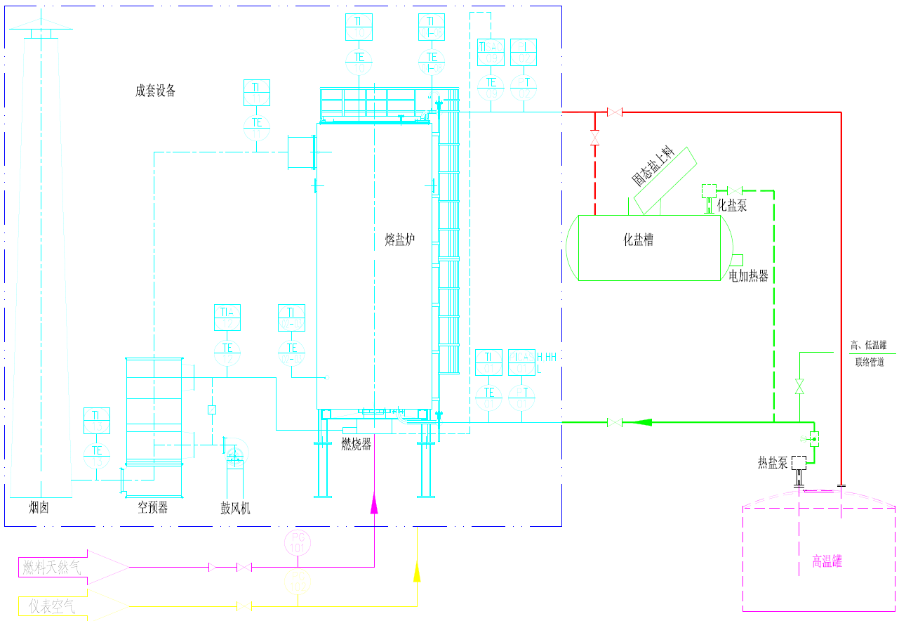
化盐系统工艺流程说明 :
化盐系统流程示意图
化盐系统工艺流程如图1所示,包括:熔盐破碎加料系统(破碎机和熔盐输运机)、熔盐槽化盐系统、熔盐炉加热系统、冷却水系统、蒸汽/烟风排放系统及排污系统。具体化盐流程如下:
(1)初始投盐阶段:叉车运送吨袋包装的固态熔盐从破碎机加料口投入,破碎后的熔盐通过熔盐输运机运送至化盐槽加盐口(安装有加料斗)投入,初始投入一定量固态混合盐,采用外部加热装置熔化至液态。
(2)持续投盐阶段:启动熔盐炉、熔盐泵和搅拌器,上料系统持续从加盐口投盐。保持热盐的循环和固态盐的投入,维持化盐槽内熔盐的液位和温度(在290±5℃),直至所有固态熔盐全部熔化进入熔盐罐。
(3)升温阶段:熔盐罐340℃熔盐通过熔盐炉进一步加热升温至550℃。
2.功能简述
化盐设备系统功能是将固态熔盐加热熔化并升温至550℃,化盐系统主要设备说明如下:
(1)熔盐炉:载热介质为熔盐的热载体加热炉,用于加热液态熔盐;
(2)化盐槽:用于存储高温熔盐的槽类容器;
(3)化盐泵:用于提供压头使熔盐在炉管和管道系统中进行循环流动的泵类设备;
(4)搅拌器:用于化盐过程中,对化盐槽内固液熔盐均匀混合的器件;
(5)破碎机:用于熔盐加料时,对板结的熔盐物料进行破碎的设备;
(6)熔盐输运机:用于熔盐加料时,对熔盐物料进行传输的装置。
燃气熔盐炉是光热发电项目上的核心加热设备
燃气熔盐炉化盐系统流程示意图如下:
燃气熔盐炉化盐系统供货清单
|
序号 |
设备名称 |
数量 |
规格型号 |
备注 |
|
1 |
熔盐炉 |
1 |
熔盐炉材质 |
含支撑 、烟道防爆门、平台、扶梯、保护及防雨等结构,一次仪表,电控柜 |
|
S347H炉管,S304炉壳 |
||||
|
2 |
燃烧器 |
1 |
含燃烧器阀组、鼓风机,本体自带控制柜等 |
|
|
3 |
空气预热器 |
1 |
12Cr1MoVG管子 |
熔盐炉配套 |
|
4 |
烟囱及烟气管道 |
1 |
熔盐炉配套 |
|
|
5 |
化盐槽 |
1 |
主体材料S347H,垫板S347H,支座采用S304,烟囱为碳钢。 |
含化盐槽加盐口漏斗、烟囱、含保温 |
|
6 |
化盐槽风机 |
1 |
耐温不低于300℃ |
|
|
7 |
搅拌器 |
1 |
双层桨叶 |
液下材质为不锈钢304 |
|
8 |
熔盐泵 |
2 |
一用一备,匹配熔盐炉循环量,设计温度不低于565℃, |
|
|
9 |
皮带运输机 |
1 |
单台上料能力不低于系统要求 |
含加料斗、防护罩等 |
|
10 |
破碎机 |
1 |
单台上料能力不低于系统要求 |
含支撑结构和入口漏斗等 |
作者:常州市亚洲必赢有限公司芮亚平,咨询电话:0519-82052399
请关注亚洲必赢公司网站:www.czsngl.com
- 上一个:低氮燃气真空热水锅炉
- 下一个:废矿物油综合利用装置项目设计制造成套装置供货
