-
萘油精馏加热炉2025-04-01萘油精馏加热炉的作用萘油精馏加热炉的主要作用是通过加热使萘油进行精馏分离,从而提取高纯度的萘产品。?萘油精馏加热炉的工作原理和操作过程萘油精馏加热炉通过加热使萘油达到沸点,不同沸点的成分在精馏塔中分离。通过控制加热温度和冷凝回流,可以将萘油中的高沸点和低沸点成分分开,最终得到高纯度的萘产品?。萘油精
-
煤焦油蒸馏塔管式加热炉2025-04-01煤焦油蒸馏(coal tar distillation)是指根据煤焦油中各组分的不同沸点将各组分初步分割为几个富集某种或某几种化合物的馏分的煤焦油加工工序。一般分割为轻油、酚油、焦油、洗油、蒽油和沥青六个馏分,它包括脱渣、质量均匀化、脱水、脱盐和蒸馏等步骤:煤焦油蒸馏塔管式加热炉的作用:煤焦油蒸馏塔管式加热炉的主要
-
?馏分塔管式加热炉2025-04-01?馏分塔管式加热炉的主要作用,是加热馏分塔进料,使其达到所需的温度,以便进行后续的分离操作?。具体来说,馏分塔管式加热炉通过燃烧器产生的高温火焰直接加热炉管内的介质,使介质在管内流动并吸收热量,从而达到工艺规定的温度。这种加热方式使得介质在进入馏分塔时已经处于适宜的温度,有利于提高分离效率和产品质量?
-
精塔管式加热炉2025-04-01精塔管式加热炉的主要作用:一、核心工艺加热功能 ?能量转化与传递? 通过燃烧燃料或电加热产生高温,将热量高效传递至工艺介质(如油品、气体等),使其达到特定温度后进入精馏塔或其他反应设备?。 ?促进气液相变? 在炼油及化工流程中,对介质进行加热至气液混相状态,为后续精馏、裂解或合成反应提供必要条件?
-
管式加热炉2025-04-01管式加热炉介绍:管式加热炉是一种通过燃料燃烧直接加热管内介质的高效工业热工设备,其核心结构由辐射室、对流室、燃烧器、余热回收系统及通风系统构成?。以下从结构特性、分类体系、工艺指标、应用场景及技术趋势进行系统解析:一、结构特性与工作原理 ?核心组件? ?
-
改质沥青加热炉2025-04-01改质沥青加热炉的工作原理改质沥青加热炉通常采用导热油作为热载体,利用循环热油泵强制液相循环,将热能输送给沥青系统后重新返回加热炉。在导热油的循环过程中,沥青吸收了热能,最终达到沥青需要的工作温度,完成加热?这种设计能够在较低的运行压力下获得较高的工作温度,且无蒸汽锅炉的跑、冒、滴、漏等热
-
蒽塔管式加热炉2025-04-01蒽塔管式加热炉的作用:蒽塔工艺中的管式加热炉主要承担煤焦油分阶段加热与分离作用,具体功能如下:①.脱水预处理:1.?初步脱水:? 煤焦油在蒽塔工艺中经贮罐初步加热静置脱水后,进入管式加热炉?对流段?,通过蒸汽加热至120~130℃,进一步去除水分,使含水量降至1%-6%以下?。2.?蒸发分离? :脱水后的煤
-
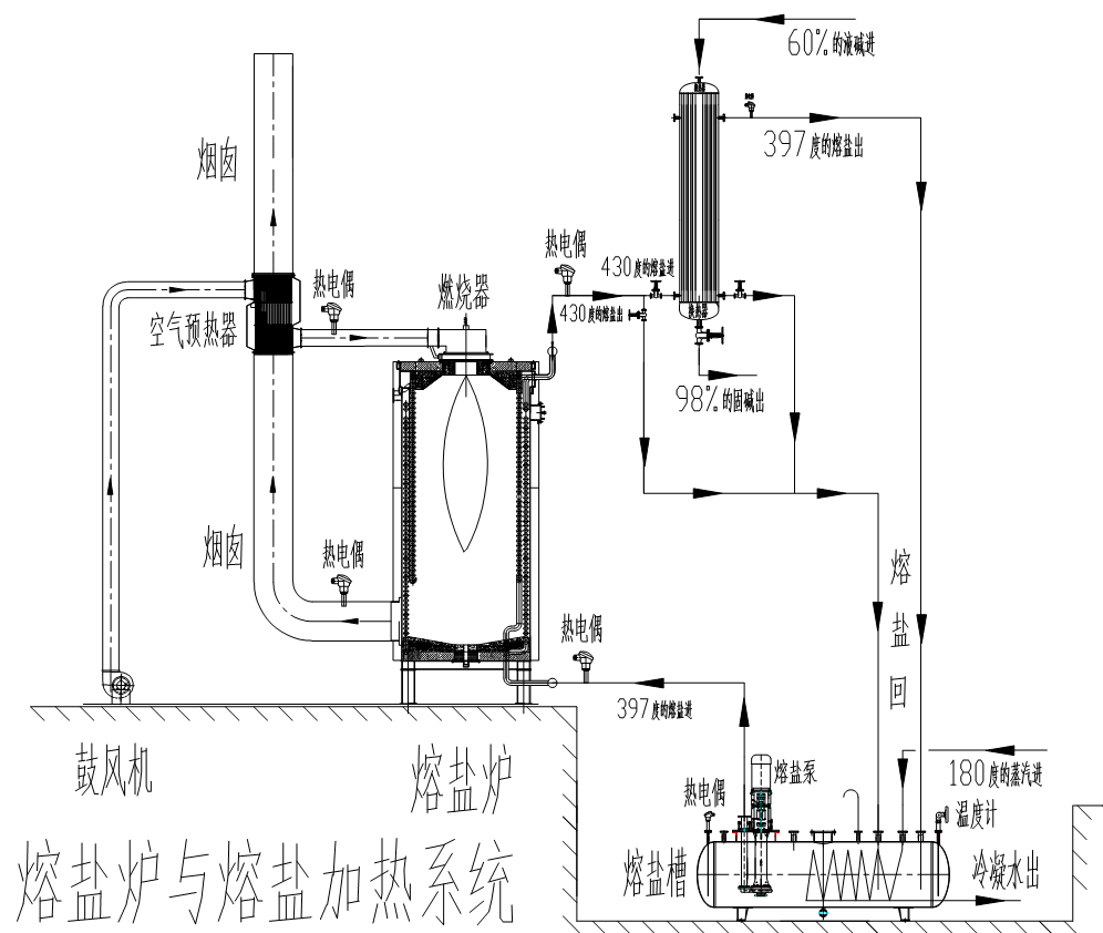
亚洲必赢公司生产的熔盐炉的介绍2024-12-09熔盐炉,熔盐加热炉,是固碱蒸发,浓缩设备中的核心装置。Molten salt furnace, molten salt heating furnace, is the core device in solid alkali evaporation and concentration equipment常州市亚洲必赢有限公司是生产熔盐炉的专业厂家。Changzhou Shangneng Boiler Co., Ltd. is a professional manufacturer of
-
熔盐炉,熔盐加热炉,是固碱蒸发,浓缩设备中的核心装置2024-12-09熔盐炉,熔盐加热炉,是固碱蒸发,浓缩设备中的核心装置。Molten salt furnace, molten salt heating furnace, is the core device in solid alkali evaporation and concentration equipment熔盐炉与熔盐加热系统介绍Introduction to Molten Salt Furnace and Molten Salt Heating System作者:常州市亚洲必赢有限公司芮亚
-
电加热导热油炉的工作原理及用途2024-05-23电加热导热油炉常州市亚洲必赢有限公司专注设计制造电加热导热油炉,燃气导热油炉,联系电话:13815029577一、电加热导热油炉的工作原理及用途:电加热导热油炉是采用电热方式,以导热油为载热体,利用循环油泵强制闭路液相循环将热能输送给用热设备后,再返回电加热导热油炉炉体内加热的一种直流式特种工业炉,可满足生产流
