关键词:燃气导热油炉 | 燃气导热锅炉 |导热油炉 | 导热油锅炉
产品描述:燃气导热油炉低氮型燃烧器选配所谓燃气导热油锅炉不外呼有两大件构成,一件是燃气导热油锅炉的炉本体,另一件是燃气导热油锅炉所用的低氮燃气燃烧器。燃烧器是一种组织燃烧···
订购热线:13815029577
联系方式
CONTACT INFO
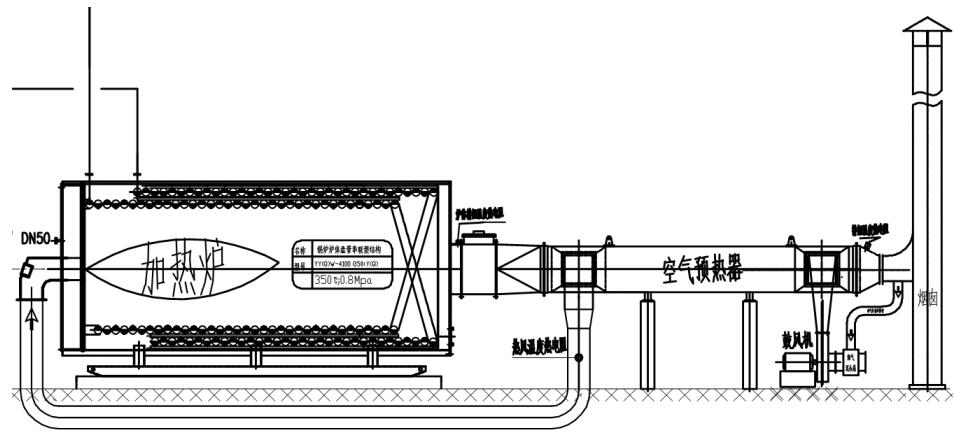
燃气导热油炉低氮型燃烧器选配
所谓燃气导热油锅炉不外呼有两大件构成,一件是燃气导热油锅炉的炉本体,另一件是燃气导热油锅炉所用的低氮燃气燃烧器。

燃烧器是一种组织燃烧的装置,是一种机电一体化产品,从燃料上分大致可分为:液化气、天然气、城市煤气型。
低氮燃气燃烧器都是锅炉厂家外购的,为此使用户了解低氮燃气燃烧器。

为了达到节能,在锅炉烟道上加装了空预器,使冷风变热风送炉膛助燃天燃气,提高炉膛温度,起到节能的效果。燃烧器用分体低氮燃烧器配导热油锅炉。
分体式燃气燃烧器;为突破一体机的性能限制如较大出力时更大功率的风机不必一体内置,允许使用髙温助燃风,动力噪音源可转移至降噪隔离区等.根据应用系统状况可选择分体式燃烧器,锅炉尾部加装空气预热器,需选用分体式热风型燃烧器。

但随着国家环保排放标准的提高,对不同的地区燃气导热油锅炉的使用排放,有着不同的环保排放标准,特别是对氮氧化物排放要求更严格。
北京,郑州,西安,宝鸡,咸阳,渭南,铜川,成都,山西等地区氮氧化物排放小于30毫克/每立方米。
上海,杭州,长三角地区氮氧化物排放小于50毫克/每立方米。
我们工厂出厂的燃气导热油锅炉选购的超低氮型燃气燃烧器是根据用户当地的环保要求来选配的,是符合当地环保要求的超低氮型燃气燃烧器。
客户如需要采购燃气导热油炉,可咨询常州市亚洲必赢有限公司芮总,联系电话:13815029577并关注公司网站:www.czrsgl.com






